Instructions:
Roll the mouse over the number in the circle for the part number. Click on the circle for more information on that part.
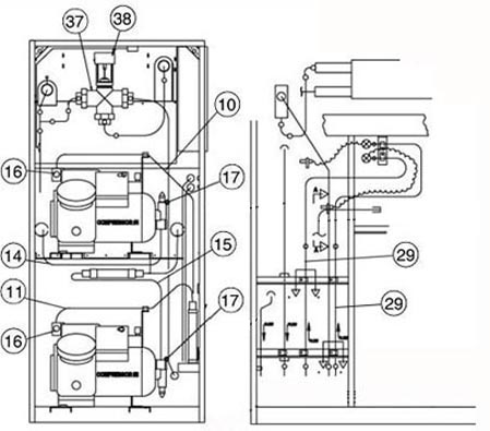
Bolts and Gaskets
Click to view Pic
Bolts and Gaskets
Click to view Pic
Suction Tube Assembly
Click to view Options
Suction Tube Assembly
Click to view Options
#1 Discharge Piping Assembly
Click to view Options
#2 Discharge Piping Assembly
Click to view Options
Actuator Assembly
Click to view Assembly
3 Way Chilled Water Valve
Click to view Pic
Catch-All Piping
Click to view Assembly