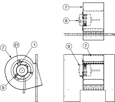
Blower Section
Instructions:
Roll the mouse over the number in the circle for the part number. Click on the circle for more information on that part.
1C19516P1
Blower W/H DD10-08APX0.50
All
Click for Photo
156003P1
Motor Mount 3T MME
208/230-1-60
Click for Photo
1D19535P1
Motor .50HP 208/230-1-60
1D19535P2
Motor .50HP 277-1-60
1D19535P3
Motor .50HP 460-3-60
1D19535P4
Motor .50HP 220/240-1-50
1D19535P5
Motor .50HP 380/400-3-50
Click for Photo
Motor Mount Hardware
Click for Photo